Rhythm Series / 28563R The Vibrato

3D Tour

No 3D Tour Available

Floor Plan Details

3
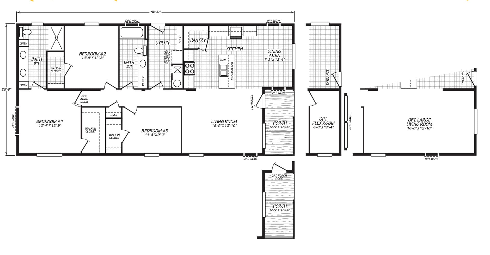
1493 FT²
2
26'8″ x 56’0″
The Rhythm Series / 28563R built by Poky Homes features 3 bedrooms, 2 bathrooms, and 1,493 square feet of inviting, thoughtfully designed living space that’s made for real-life comfort. Whether you’re hosting a weekend gathering or enjoying a quiet evening at home, this layout makes it easy to do it all. The 28563R blends warmth, style, and everyday function into a home that feels just right—a welcoming place where lasting memories are ready to be made.
Starting at $156,000

***Starting price includes delivery, home set and close up, and sales tax.

Floor Plan

Floor Plan Specifications

Bathroom Cabinets: 36” height lavy cabinet
Bathroom Sink: Square china sink(s)
Bathroom Lighting: LED can light above sink(s)
Bathroom Faucets: Single lever faucet(s)
Bathroom Fans: Exhaust fan
Bathroom Additional Specs: Towel bar & tissue holder
Bathroom Backsplash: Laminate backsplash
Bathroom Shower: 60” shower stall in MBath / 60” 1 pc. fiberglass tub/shower in guest bath / Single lever tub/shower diverter
Bathroom Toilet Type: Elongated commode
Bathroom Mirror: Framed bathroom mirrors

Ac Ready: A/C Disconnect
Additional Specs: Air-Infiltration barrier / Accent paint between columns / Installed bottom trim – painted base color / Foundation Ready / 2 1⁄4” square baseboard installed T/O / Energy Star 2.0 Rated Home / Removable hitches
Exterior Wall On Center: 16” O.C.
Exterior Wall Studs: 2” x 6” Exterior walls
Floor Decking: 19/32” T&G OSB floor decking
Roof Load: 30 lb. Roof load
Insulation (Floors): R-33 floor
Insulation (Walls): R-21 walls
Insulation (Roof): R-40
Insulation Specs: Zone III Thermal
Eaves: 6” Eave on side-walls for multi-section / 12” Eave on end-walls for multi-section

Dormer: Dormer(s), size and location dependent on size of home / Built out columns under dormer to serve as accent
Front Door: 36” In-swing front door w/deadbolt
Rear Door: 36” 9-Lite in-swing rear door w/deadbolt, per plan
Roof Pitch: 3:12 Roof pitch
Shingles: Class A fire rated limited lifetime architectural shingles
Siding: LP Smart Panel exterior siding
Window Trim: 4” trim all windows
Exterior Lighting: Black upgrade porch light front and rear doors
Exterior Outlets: GFI patio plug near front and rear door

Ceiling Fans: Wire & brace for ceiling fan in L/R and all bedrooms
Ceiling Texture: Textured ceilings (orange peel) / Matched ceiling paint to room
Ceiling Type Or Grade: 8’ flat ceilings
Safety Alarms: HUD compliant CO/Smoke combo detector(s)
Wall Finish: Tape & texture walls through-out w/square corners
Interior Doors: 2-panel white interior doors / Residential style mortise door hinges (3) / Stick-on door stops
Interior Lighting: LED can lights T/O
Interior Flooring: Vinyl flooring in wet areas per plan / Entry vinyl / Vinyl matched transition bar(s) shipped loose
Cabinetry & Counters: Closets and pantries are painted drywall and molding / Wire closet shelves / Hardwood cabinet doors and face frames / Cab doors & drawers with cabinet knobs / Lined overhead cabinets w/1 adjustable shelf / Lined base cabinets w/MDF fixed shelf / Wood ply drawer sides w/metal drawer guides
Additional Specs: 2 1⁄4” square white ceiling trim installed T/O / Square window & door trim
Carpet Type Or Grade: Shake It Up carpet – 25 oz. (shipped loose) / 7/16” – 7# carpet pad (shipped loose)

Kitchen Sink: 8” Double cell stainless steel sink
Kitchen Refrigerator: 18 cu. ft. stainless steel Whirlpool refrigerator
Kitchen Range Type: 30” stainless steel smooth top Whirlpool electric range
Kitchen Range Hood: 30” stainless steel range hood
Kitchen Faucets: Single lever faucet with sprayer
Kitchen Drawer Type: Bank of drawers w/1 small drawer & 2 large drawers
Kitchen Dishwasher: Stainless steel Whirlpool dishwasher
Kitchen Cabinetry: 42“ overhead kitchen cabinets w/full cabinet doors / Crown molding on kitchen cabinets (2” stile material) / Cabinets above the refrigerator (per plan)
Kitchen Backsplash: Laminate backsplash w/self edge T/O
Kitchen Additional Specs: Plumb for ice maker

Home Warranty Info: 1 Year structural warranty (see warranty manual for complete details)

Additional Specs: Hose Bibbs (2) – front and rear, per print
Electrical Service: 200 Amp all-electric service
Furnace: Electric furnace
Heat Duct Registers: In-Floor heat duct crossovers
Shut Off Valves Throughout: Shut-off valves T/O
Thermostat: Smart Thermostat
Utility Cabinets: Wood shelf above washer/dryer
Water Heater: 50 gallon electric water heater
Water Shut Off Valves: Master water shut-off valve

Tours and Videos

No Videos Available

Photo Gallery